CASA EN POZO FINANCIADA EN COLINAS DE MANANTIALES
Código: 205457
Cañada de Gómez, X5000 Córdoba, Argentina, Córdoba, Córdoba, Argentina.
USD110.000
Compartir esta Propiedad
Descripción de la Propiedad
GRUPO SG VENDE CASA A ESTRENAR DE 3 DORMITORIOS - COLINAS DE MANANTIALES.
PRECIO DE CONTADO: U$D 210.000.
FINANCIACION U$D 110.000 + 10 CUOTAS de U$D 10.000 en pesos contra la entrega de cada etapa
Se aceptan pesos, se toma dólar vendedor Libre Banco Nación, con la actualización del IPC a partir de la firma del contrato.
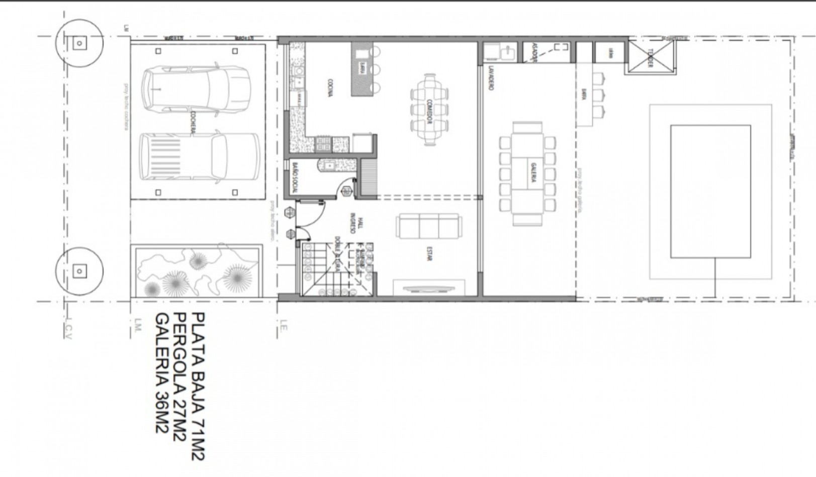
Totales: 250m2.
Cubiertos: 210m2.
Casa unifamiliar, desarrollada en dos plantas.
PB: en concepto abierto.
- Cocina y mobiliario completo de alacenas, mesada y bajo mesada.
- Estar-comedor.
- Baño de cortesía.
- Lavadero.
- Patio de servicio.
- Cochera doble.
- Galería con asador.
- Amplio patio trasero.
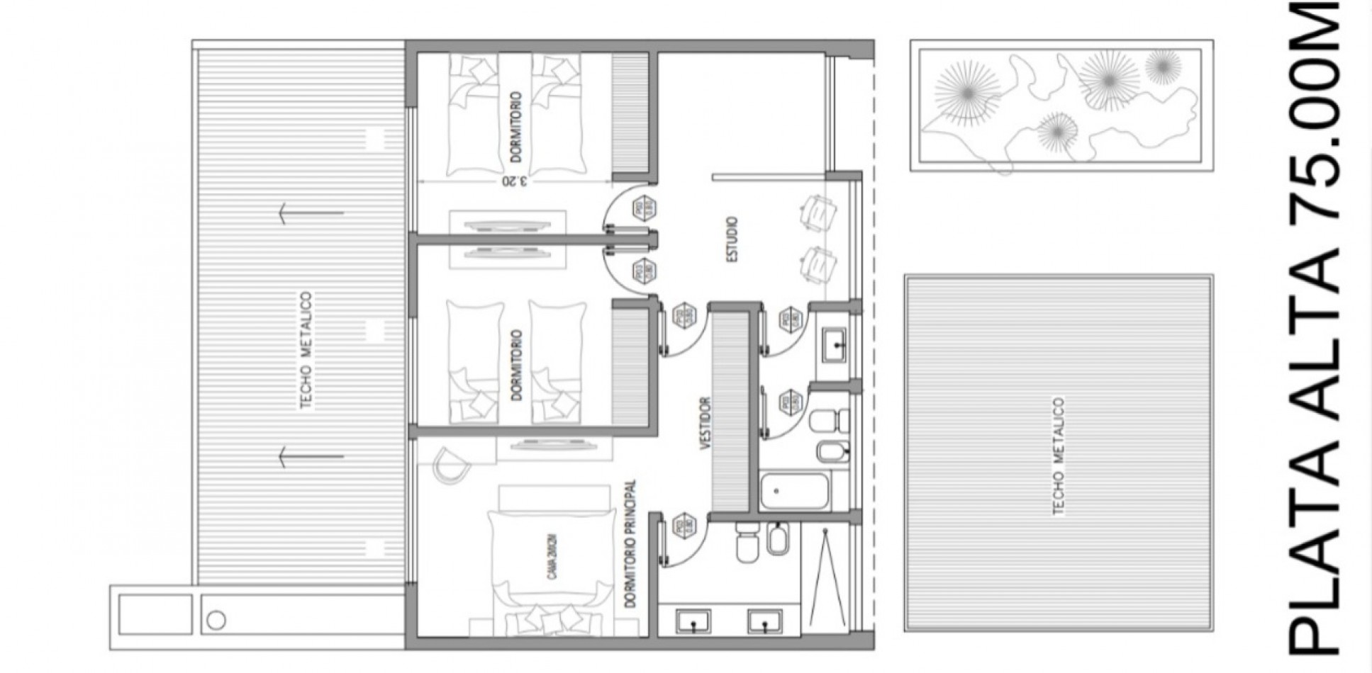
PA:
- 3 dormitorios, todos con placares, el principal con vestidor y baño en suite.
- Baño principal con antebaño. Todos los baños se entregan con sus respectivos muebles Vanitory.
- Zona de Office.
* Toda la propiedad es construida en sistema tradicional de mampostería sobre pilotes a once metros de profundidad, toda la estructura es encadenada y antisísmica.
* Todas las aberturas interiores son de madera maciza, con tableros asimétricos de estilo francés y con marcos de madera con tapa juntas estilo cajón.
* Las aberturas exteriores son de aluminio en perfiles A30 y Modena, con doble vidrio de seguridad.
* Todos los pisos y revestimiento son de porcelanato, todas las paredes interiores son enlucidas en yeso.
* Los sanitarios y la grifería son de primera calidad.
* La calefacción es por sistema de piso radiante provisto por una caldera dual.
Se aceptan terrenos en Manantiales o departamentos a evaluar.
Consúltanos.
Grupo SG CPI 7506.
Mas detalles
- Aire acondicionado
- Acepta mascotas
- Pileta
- En construcción
- Parrilla
- Seguridad 24hs.
- Luminoso
- Patio
- Solarium
- Cochera
- Calefacción Centralizada
- Agua Corriente
- Electricidad
- Red Gas Natural
- Entrada para Auto
- Galería techada
- Facilidades movilidad reducida